Trilocale in vendita

Anzio, Viale Arcobaleno - Lavinio-Lido Di Enea
€ 145.000
3 locali 3 locali
75 Mq 75 Mq
1 bagno 1 bagno

Trilocale in vendita

Anzio, Viale Arcobaleno - Lavinio-Lido Di Enea

Descrizione annuncio

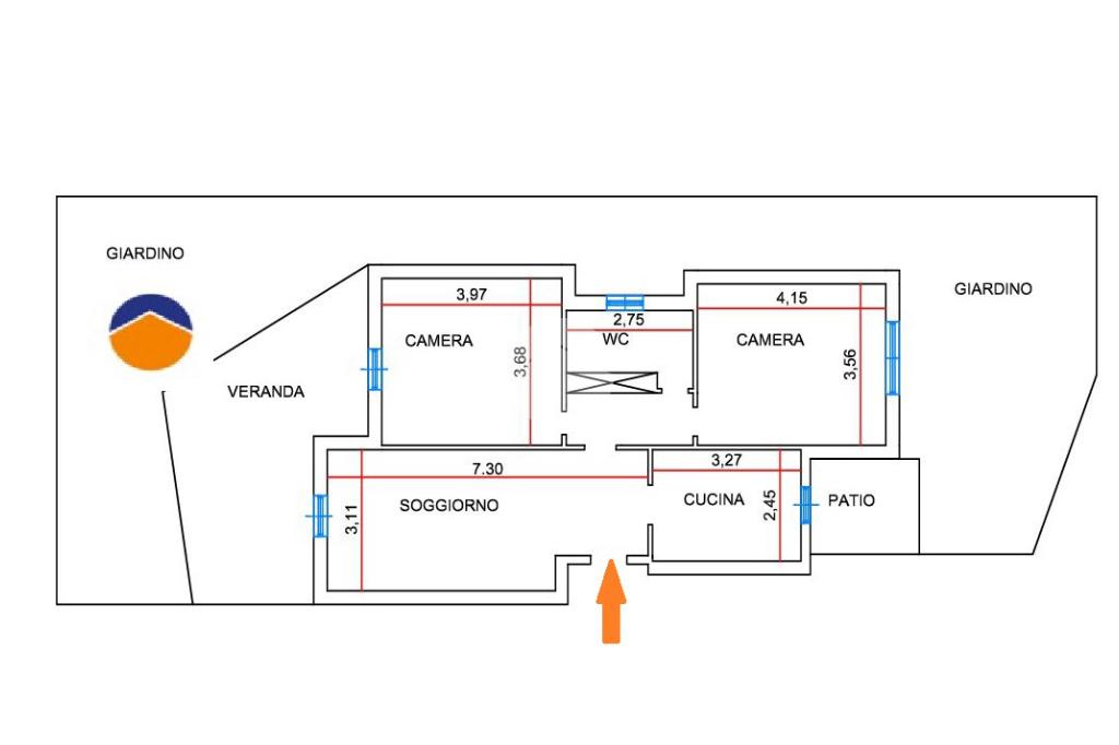
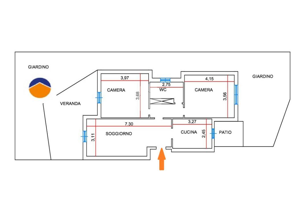
ANZIO- LAVINIO VIALE ARCOBALENO :
A soli 200 metri dal mare ed in prossimità della Piazza Lavinia, proponiamo in vendita un appartamento al piano terra inserito in una piccola e curata palazzina rivestita in maiolica.
La soluzione si apre con un piacevole giardino di circa 60 mq, che circonda l’immobile su tre lati, ideale per vivere al meglio gli spazi esterni in ogni momento della giornata. Varcando la soglia d’ingresso ci accoglie un salotto disposto in verticale, luminoso e accogliente, dal quale si accede direttamente ad un patio esterno, leggermente rialzato rispetto al giardino: uno spazio perfetto per pranzi e cene estive all’aperto.
Dall’ingresso è possibile accedere anche alla cucina, separata e abitabile, che grazie a una porta finestra conduce a un secondo patio di 5 mq e alla corte retrostante, dotata di accesso indipendente e particolarmente adatta a momenti di relax in totale privacy.
Un comodo disimpegno, arricchito da un pratico armadio a muro, accompagna alla zona notte composta da una camera matrimoniale finestrata e da una seconda camera con porta finestra e accesso diretto al patio. Il bagno, finestrato, è spazioso e funzionale, completo di box doccia.
L’immobile è dotato di infissi in legno con vetro singolo. Il giardino frontale dispone inoltre di accesso carrabile, che consente il parcheggio interno di un’automobile, aggiungendo ulteriore comodità alla proprietà.
Possibilità di visionare l'immobile tutti i giorni previo appuntamento telefonico.
Tel. 06/69275912 – 3792166827
L'ufficio è aperto tutti i giorni nei seguenti orari:
dal LUNEDI al SABATO 9:00 - 13:00 e 15:30 - 19:30
Tecnorete Anzio - Lavinio
affiliato Immobiliare Villa Claudia .
Piazza Lavinia 11, Anzio (RM)
Per qualsiasi operazione le garantiremo un'assistenza tecnico-immobiliare fino al rogito notarile.
Le presenti informazioni non costituiscono elemento contrattuale.

Mostra tutto

Nelle vicinanze

Trasporto pubblico Trasporto pubblico
Villa Claudia
Villa Claudia
2,8 Km
Scuole Scuole
Scuola Primaria "Gianni Rodari"
810 m
Istituto Professionale Alberghiero "Marco Gavio Apicio" - Succursale
1,0 Km
Scuola Primaria "Carlo Collodi"
2,4 Km
Farmacia Farmacia
Farmacia Farfarelli
420 m
Supermercati Supermercati
Mattioli
1,2 Km
In's
1,3 Km
Bar Bar
Flory
450 m
Ristoranti Ristoranti
La Torre
790 m
Il Giardino degli Aranci
1,3 Km
Villa Rugantino
2,3 Km
El Brasero
2,8 Km
Da Picchio
2,9 Km
Mostra tutto

Caratteristiche

Rif.:
61154148
Piano:
Terra con giardino di 3
Totale piani:
3
Posti auto:
1
Balconi:
1
Terrazzi:
1
Mostra tutto
Prezzo Prezzo
€ 145.000
Rata mutuo Rata mutuo
€ 684 / mese
Spese annue Spese annue
€ 800
Proponi il tuo prezzoProponi il tuo prezzo

Classe Energetica

G
G
G
G
G
G
G
G
G
EP invernale del fabbricato:
EP estiva del fabbricato:
Anno di costruzione:
1962
Riscaldamento:
Assente

Ti interessa visionare l'immobile?

Fissa un appuntamento  Fissa un appuntamento

Richiedi informazioni

Clicca su Leggi per aprire l'informativa
* Questi campi sono obbligatori

Calcola il tuo mutuo

Semplice e senza impegno
Anticipo

( % )
Mutuo

( % )

pochi semplici passi

inserisci i tuoi dati
Questionario completato
Grazie per aver richiesto un appuntamento senza impegno con un nostro Consulente del Credito e Assicurativo.

Hai inserito correttamente tutti i dati necessari e a breve riceverai una e-mail con un link da convalidare per inviare i tuoi dati.
Affiliato
Immobiliare Villa Claudia Srl
P.zza Lavinia, 11 00042 Anzio (RM)

Il nostro staff


  • Simone Crivellaro
    Affiliato

  • Fabio Privato
    Affiliato

  • Anastasiya Bruy
    Affiliata
P.zza Lavinia, 11 00042 Anzio (RM)
Zona: Anzio
Mostra su mappa
Orari: DAL LUNEDì AL SABATO : 9.00 - 13.00 e 15.30 - 19.30
Affiliato
Immobiliare Villa Claudia Srl
P.zza Lavinia, 11 00042 Anzio (RM)

2025 Tecnocasa Franchising S.p.A. - P. IVA 08365160152 - Via Monte Bianco 60/A 20089 Rozzano (MI). Ogni agenzia ha un proprio titolare ed è autonoma. Privacy policy | Policy utilizzo | Cookie policy