6 locali in vendita

Anzio, Via Ninfa Alburnea - Lavinio-Lido Di Enea
€ 223.000
6 locali 6 locali
180 Mq 180 Mq
3 bagni 3 bagni

6 locali in vendita

Anzio, Via Ninfa Alburnea - Lavinio-Lido Di Enea

Descrizione annuncio

ANZIO – LAVINIO VIA NINFA ALBURNEA :

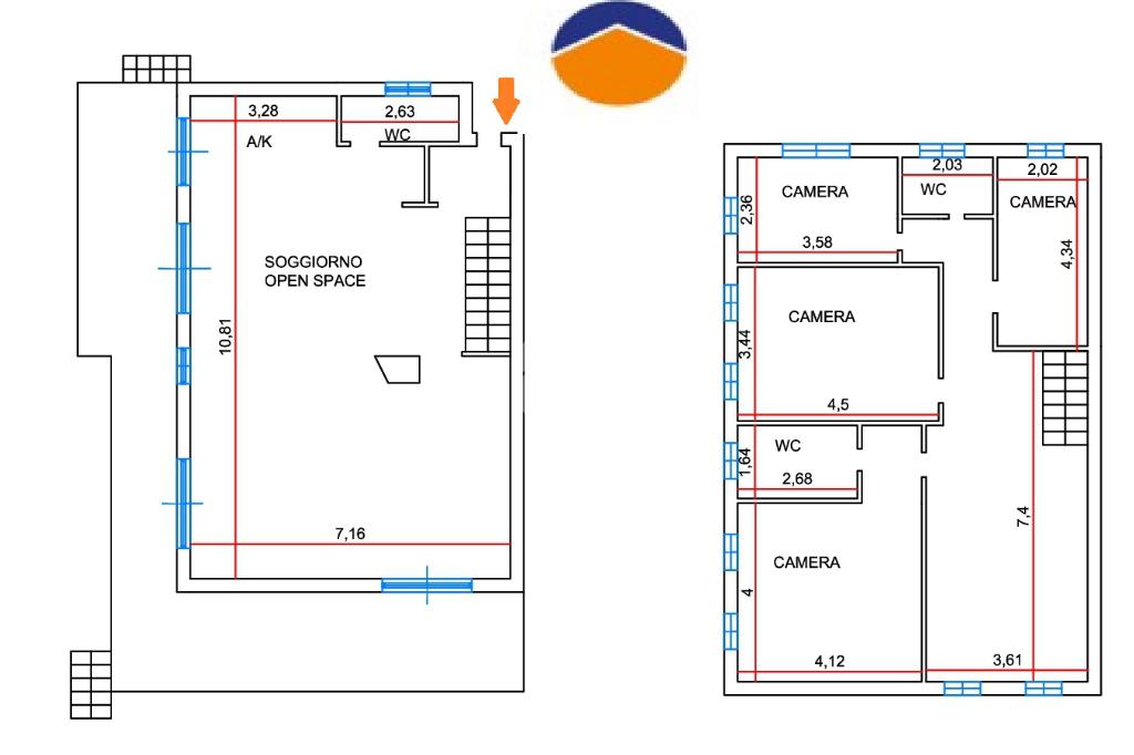
A soli 400 metri dalla rinomata spiaggia di Lavinio, proponiamo in vendita un appartamento duplex disposto al piano terra rialzato e piano interrato con giardino privato. La soluzione è stata ristrutturato di recente ed è dotata di ingresso indipendente.
L’immobile si apre su un ampio soggiorno open space di circa 70 mq con un’elegante cucina a vista, caratterizzato da grandi porte-finestre che garantiscono ottima luminosità naturale e consentono l’accesso al giardino attraverso il terrazzo perimetrale. Lo spazio esterno, ben vivibile, dispone inoltre di una doccia, ideale per rinfrescarsi durante le calde giornate estive. La zona giorno è completata da un accogliente camino centrale e da un bagno finestrato con doccia.
Tramite un’elegante scala in legno si accede alla zona notte, dove trova spazio un secondo soggiorno, un ambiente versatile e accogliente, ideale per essere vissuto come zona relax. Proseguendo troviamo una camera matrimoniale con bagno privato, camera doppia, cameretta, studio e ulteriore bagno di servizio.
La soluzione si presenta in ottime condizioni, luminosa e funzionale, ideale sia come abitazione principale che come casa vacanze a pochi passi dal mare e dai servizi.
Inoltre, completa l’immobile un posto auto scoperto assegnato , sito nel cortile condominiale della palazzina e una ampia soffitta.
L’immobile è dotato di impianto idrico-fognario comunale, pozzo privato, gli infissi sono in legno a vetro singolo e le grate su tutte le finestre e portone blindato che garantiscono una maggiore sicurezza.

Possibilità di visionare l'immobile tutti i giorni previo appuntamento telefonico.
Tel. 06/69275912 – 3792166827
L'ufficio è aperto tutti i giorni nei seguenti orari:
dal LUNEDI al SABATO 9:00 - 13:00 e 15:30 - 19:30
Tecnorete Anzio - Lavinio
affiliato Immobiliare Villa Claudia .
Piazza Lavinia 11, Anzio (RM)
Per qualsiasi operazione le garantiremo un'assistenza tecnico-immobiliare fino al rogito notarile.
Le presenti informazioni non costituiscono elemento contrattuale.

Mostra tutto

Nelle vicinanze

Trasporto pubblico Trasporto pubblico
Villa Claudia
Villa Claudia
2,2 Km
Lavinio
Lavinio
2,8 Km
Ricariche auto elettriche Ricariche auto elettriche
Centro Anthos Ii
3,0 Km
Scuole Scuole
Istituto Professionale Alberghiero "Marco Gavio Apicio" - Succursale
720 m
Scuola Primaria "Gianni Rodari"
1,2 Km
Scuola Primaria "Carlo Collodi"
1,9 Km
Scuola Primaria "Ivana Gregoretti"
2,6 Km
Scuola Secondaria di I grado "Virgilio"
2,7 Km
Farmacia Farmacia
Farmacia Farfarelli
890 m
Supermercati Supermercati
Mattioli
1,7 Km
In's
1,8 Km
Conad
2,9 Km
Bar Bar
Flory
920 m
Ristoranti Ristoranti
La Torre
600 m
Villa Rugantino
1,6 Km
Il Giardino degli Aranci
1,8 Km
El Brasero
2,1 Km
Da Picchio
2,3 Km
Mostra tutto

Caratteristiche

Rif.:
61105453
Piano:
Su più livelli di 3
Totale piani:
3
Posti auto:
1
Terrazzi:
1
Camere da letto:
4
Mostra tutto
Prezzo Prezzo
€ 223.000
Rata mutuo Rata mutuo
€ 1.022 / mese
Spese annue Spese annue
€ 1.800
Proponi il tuo prezzoProponi il tuo prezzo

Classe Energetica

G
G
G
G
G
G
G
G
G
EP invernale del fabbricato:
EP estiva del fabbricato:
Anno di costruzione:
1967
Riscaldamento:
Assente

Ti interessa visionare l'immobile?

Fissa un appuntamento  Fissa un appuntamento

Richiedi informazioni

* Questi campi sono obbligatori

Calcola il tuo mutuo

Semplice e senza impegno
Anticipo

( % )
Mutuo

( % )

pochi semplici passi

inserisci i tuoi dati
Questionario completato
Grazie per aver richiesto un appuntamento senza impegno con un nostro Consulente del Credito e Assicurativo.

Hai inserito correttamente tutti i dati necessari e a breve riceverai una e-mail con un link da convalidare per inviare i tuoi dati.
Affiliato
Immobiliare Villa Claudia Srl
P.zza Lavinia, 11 00042 Anzio (RM)

Il nostro staff


  • Simone Crivellaro
    Affiliato

  • Fabio Privato
    Affiliato

  • Jessica Tinnirello
    Collaboratrice

  • Anastasiya Bruy
    Affiliata
P.zza Lavinia, 11 00042 Anzio (RM)
Zona: Anzio
Mostra su mappa
Orari: DAL LUNEDì AL SABATO : 9.00 - 13.00 e 15.30 - 19.30
Affiliato
Immobiliare Villa Claudia Srl
P.zza Lavinia, 11 00042 Anzio (RM)

2025 Tecnocasa Franchising S.p.A. - P. IVA 08365160152 - Via Monte Bianco 60/A 20089 Rozzano (MI). Ogni agenzia ha un proprio titolare ed è autonoma. Privacy policy | Policy utilizzo | Cookie policy